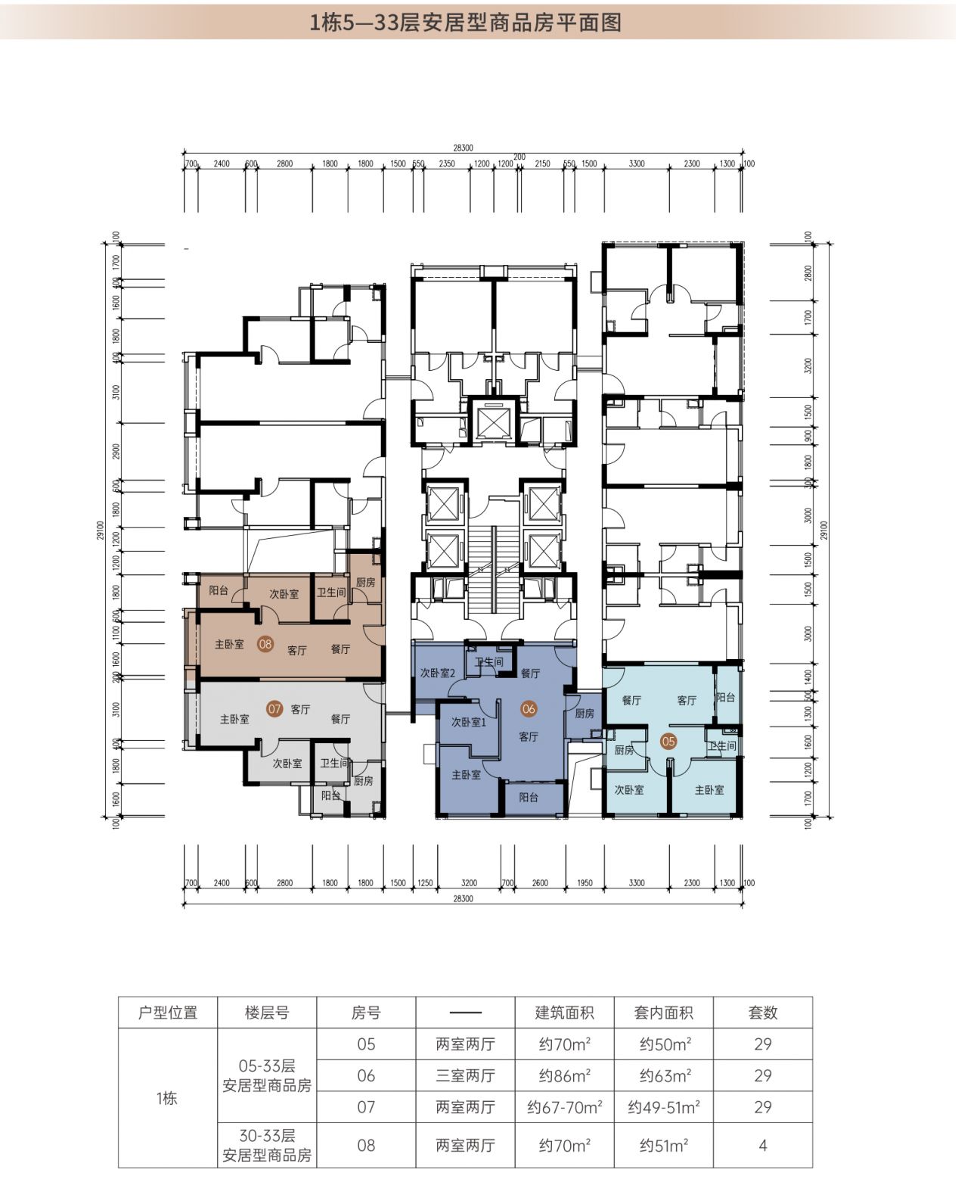
小梅沙湾畔家园户型图(两房+三房)
小梅沙湾畔家园2025年11月7日至11月23日18:00配售的94套安居房分为两种户型,64套建筑面积约67-71㎡的两房户型,30套建筑面积约86-87㎡的三房户型,室内均为精装修交付,房间户型图见正文。
小梅沙湾畔家园2025年11月7日至11月23日18:00配售的94套安居房分为两种户型,64套建筑面积约67-71㎡的两房户型,30套建筑面积约86-87㎡的三房户型,室内均为精装修交付,房间户型图见正文。
小梅沙湾畔家园2025年11月7日至11月23日18:00配售的94套安居房分为两种户型,64套建筑面积约67-71㎡的两房户型,30套建筑面积约86-87㎡的三房户型,室内均为精装修交付。
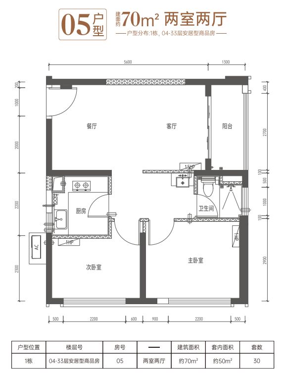
1.两房户型(建面约67-71㎡,套内约49-51㎡)
空间紧凑实用:均为两室两厅一卫布局,建筑面积跨度小,套内面积集中在49-51㎡,无多余空间浪费,适配单身或二至三人刚需家庭。








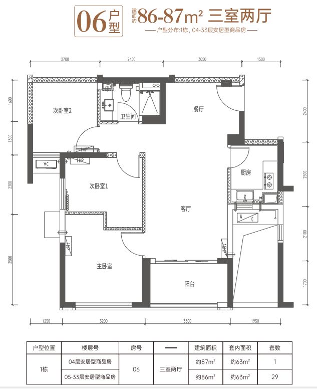
2.三房户型(建面约86-87㎡,套内约63㎡)
空间更宽敞,功能性强:为三室两厅一卫设计,比两房户型多出一个卧室,套内面积达 63㎡,可灵活设置儿童房、书房或储物间,适配四人及以上家庭或改善型需求。


网上VR看房入口为:https://anju.szhome.com/720/www/subject/yt_wbjy/index.html

配售期间,需要现场看房的可以拨打小梅沙湾畔家园项目咨询电话0755-25035555,接听时间:9:00-12:00,14:00-18:00。
*房源基本情况:盐田小梅沙湾畔家园安居房地址+均价+户型图+VR看房入口
*认购指南:2025深圳小梅沙湾畔家园安居房认购申请指南
温馨提示:微信搜索公众号【深圳本地宝】,关注后回复【家园】获取小梅沙湾畔家园安居房地址、售价、两房三房价格表、户型图及售房说明书、线上看房入口和现场看房预约电话、认购申请入口及申请指南、预计交付时间等