2025深圳卓越柏乐庭公租房基本情况+申请指南
龙华区卓越柏乐庭公租房位于深圳市龙华区大浪街道建设路386号,项目为现房。2025年8月1日-8月7日配租100套,户型为一房(建筑面积约36㎡)40套,二房一厅(建筑面积约66㎡)60套,更多房源信息见正文。
龙华区卓越柏乐庭公租房位于深圳市龙华区大浪街道建设路386号,项目为现房。2025年8月1日-8月7日配租100套,户型为一房(建筑面积约36㎡)40套,二房一厅(建筑面积约66㎡)60套,更多房源信息见正文。
卓越柏乐庭
该项目位于广东省深圳市龙华区大浪街道建设路386号,项目为现房。2025年8月1日-8月7日配租100套,户型为一房(建筑面积约36㎡)40套,二房一厅(建筑面积约66㎡)60套。
租金价格:18元/平方米/月
物业管理费标准:6.2元/平方米/月
物业专项维修资金:0.25元/平方米/月
看房联系方式:15993476932
看房注意事项
(1)看房时间:2025年8月1日-2025年8月7日,上午9:00-11:30,下午2:00-5:30,过时不再接待看房人员。
(2)请各看房家庭携带户籍在册轮候人证明材料(含深圳市保障性住房日常轮候申请受理备案回执)前往看房现场。
(3)为避免人群拥挤,家庭看房人数不超过2人,老人和小孩请勿前往现场。如看房人数较多,现场工作人员会适时控制人数。
(4)各看房项目不提供停车位,请看房家庭绿色出行。
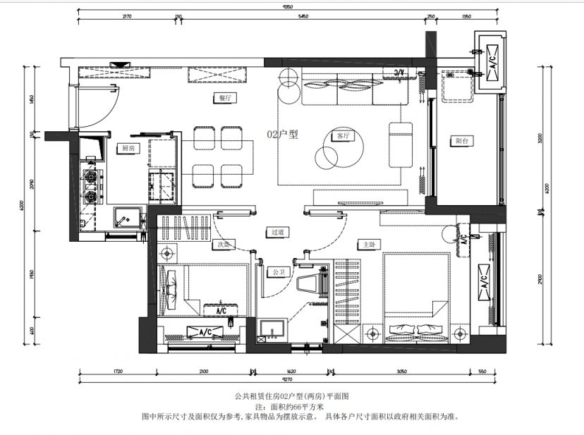
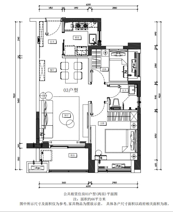
户型图:
下面仅展示部分户型图,更多户型图点击查看:卓越柏乐庭公共租赁住房户型图.pdf


同批次配租房源情况:2025深圳龙华区835套公租房房源信息表
申请时间
2025年8月1日-8月7日18:00(共7天)
申请条件
注意面向符合收入财产限额的龙华公租房家庭。
点击查看2025龙华公租房认租申请条件
申请流程
申请人进入深圳市住建局官网住房保障个人服务窗口内申请。
选房规则和面积
温馨提示:微信搜索公众号【深圳本地宝】,关注后在对话框回复【龙华公租房】可获龙华公租房最新房源基本情况、户型图和网上看房入口、现场看房联系电话、申请时间、申请入口、收入核对指引和申请要求等